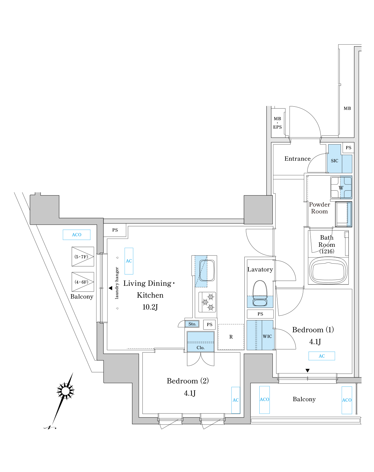
Ctype
2LDK
専有面積
45.20m²(約13.67坪)
Ctype 間取り図

©JR West Properties Co.,Ltd.

× CLOSE