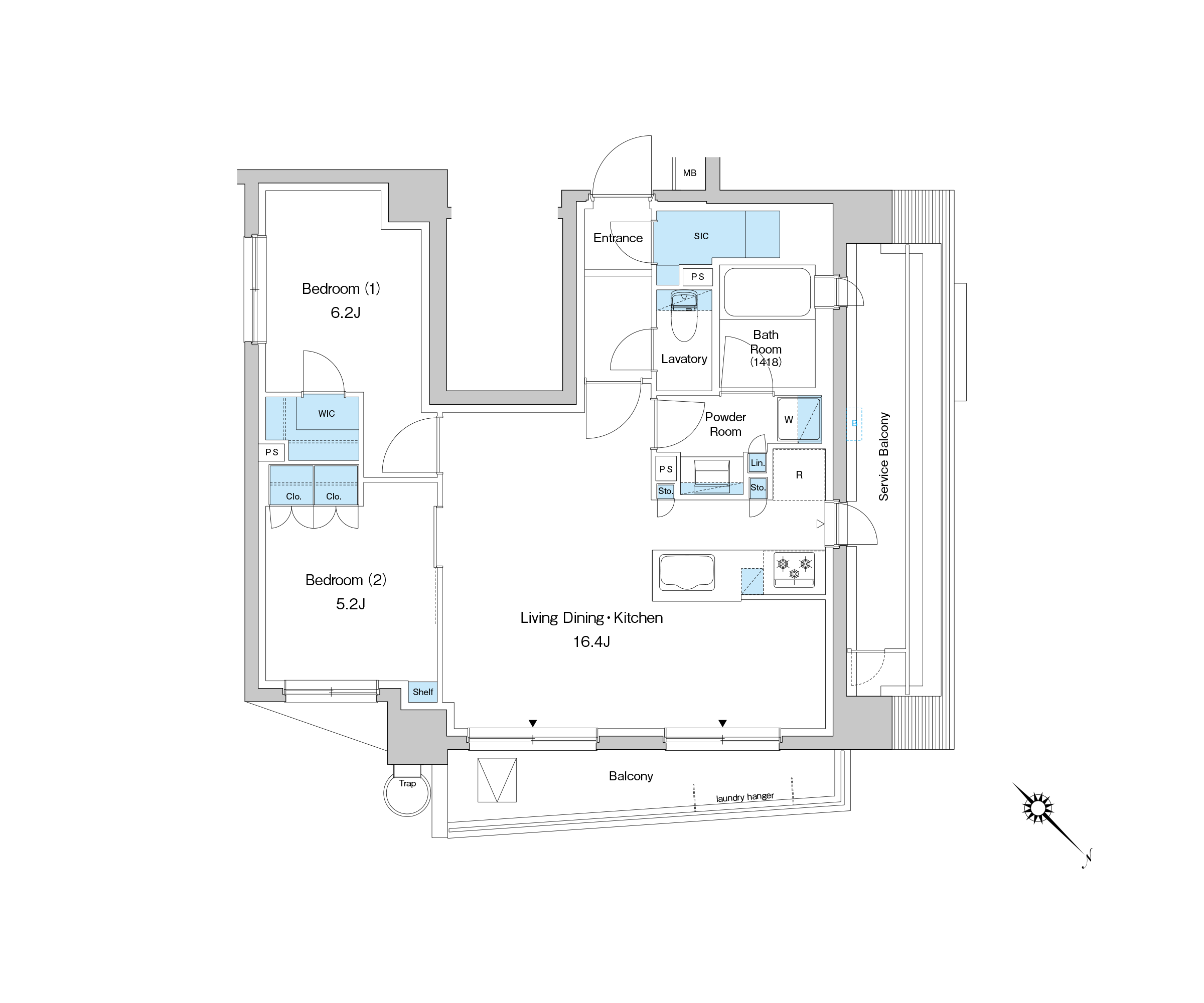
Otype
2LDK
専有面積
62.40m²(約18.88坪)
Otype 間取り図

©JR West Properties Co.,Ltd.

× CLOSE