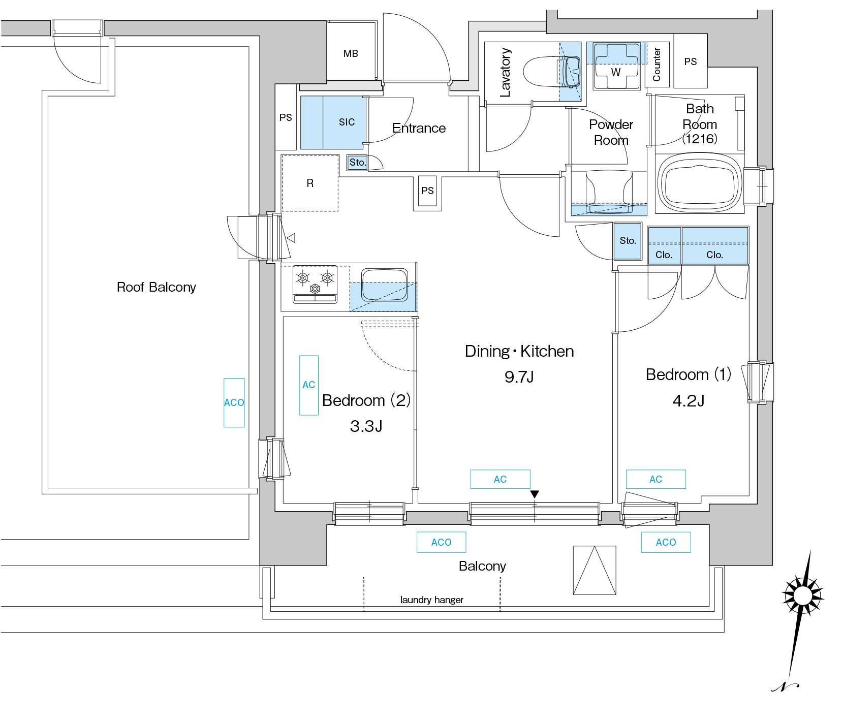
Etype
2DK
専有面積
41.74m²(約12.62坪)
Etype 間取り図

©JR West Properties Co.,Ltd.

× CLOSE