※当物件からの東に大阪湾、西に播磨灘。間近に見える淡路島に、日本最長の吊り橋・明石海峡大橋の眺望(眺望は階数や向きにより見え方が異なります。また、将来に渡って保障されるものではありません。
(税込)
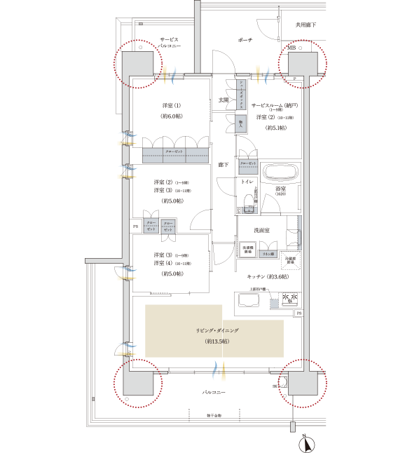
65㎡台/4,500万円台~
- 日本最長の美しき吊り橋を一望明石海峡大橋を望む立地
- 徒歩7分の通学しやすいポジション東舞子小学校(約530m)、歌敷山中学校(約500m)
- 多世代が利用できる緑豊かな公園に2面近接
- CO2削減・省エネ化の先進設備を導入低炭素住宅認定取得
- 彩豊かに、心安らぐ暮らしを育む自然や人と「つながる」多彩な共用施設
- 3棟構成のビッグスケール地上11階建・全350邸
INFORMATION
「プレディア 神戸舞子レジデンス」
モデルルーム公開中
物件エントリーメリット
MERIT01
エントリーいただいたお客様には、
先行してスケジュールなど
最新情報をお知らせいたします。
MERIT02
デジタルライブラリーにて、
未公開間取り、眺望写真など
限定情報を随時公開いたします。
※エントリーいただいても、資料発送は行っておりません。予めご了承ください。
2025.12.25《兵庫県初》ソフトサービスとして、マンション内に処方箋受付機を設置することが決定しました。
2025.11.18間取りページにWH1タイプを追加しました。
2025.4.28モデルルームにWCタイプのバーチャル体験ツアーを公開しました。

県立舞子公園 徒歩7分(約490m)

image photo

外観完成予想CG

現地11階相当の眺望写真(2023年10月撮影)















