
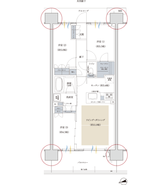
Plan
image photo
65㎡~94㎡台・
2LDK+S~4LDKまで、
豊富な間取りをご用意。
多様化するライフスタイルにあわせて、
幅広い選択肢の中からお部屋をお選びいただけるよう、
多彩な間取りをご用意しました。
永住にふさわしい住み心地と快適性を創造するために、
設備・仕様の細部にもこだわっています。
眺望と開放的空間をお愉しみ
いただくための“6つ”のこだわり。
① フルアウトポール設計
室内レイアウトを美しく
室内を柱が邪魔にならないアウトポール設計としました。コーナースペースに無駄が生じにくく、インテリアや家具配置の自由度も高まります。※EG・EH1・EH2・EI・SK・SLタイプはフルアウトポール対応ではありません。
概念図
概念図
有効面積を広く
マンションの住居専有面積は、壁や柱の中心線を基準とする「壁芯面積」で表示されています。そのため、柱が居室内に出ている一般的な工法では、表示されている面積よりも、実際に使える空間は狭くなります。※一部配管スペースが住居専有面積に含まれる場合があります。
※上記面積はW棟、S棟の7階までを基準に計算した概算値で住戸により異なります。
② 扁平梁
概念図
リビング・ダイニング側の梁の高さを抑えた「扁平梁」の採用により、サッシ高を約2.1m確保。明るく開放感のある空間を創出します。
③ ハイサッシ
概念図
室内からも眺望をお楽しみいただけるよう、一般的なサッシよりも約20~30cm高いハイサッシを導入しました。採光性と開放感、快適性も高まります。
④ センターオープンサッシ

リビング・ダイニングには、中央から左右に窓を開くセンターオープンサッシを取り入れました。開口幅が広く、通風性・居住性にも優れます。※一部のタイプは異なります。
⑤ 熱線反射ガラス(ガラス手摺)
熱線反射ガラス概念図
バルコニーのガラス手摺に、日射軽減効果を持つ熱線反射ガラスを採用。マジックミラーのように外から内側は見えずらく、内側から外は見やすいという効果も得られます。※熱線反射ガラスは5階以上の住戸で採用しています。
⑥ フルフラットキッチンカウンター

キッチンカウンターをダイニング側に壁や立ち上がりがないフルフラットとし、キッチンからの眺めや開放感にも配慮。手元の明るさも使い心地を高めます。
- 60㎡台
- 70㎡台
- 80㎡台
- 90㎡台
- 専用テラス付
- ルーフ
バルコニー付
WKtype
2LDK+S+WIC
65.54㎡
![]()
全居室採光・通風
効率的な家事動線
縦長LD
WIC設置ほか収納充実
WK TYPE 4,598万円をご購入の場合(216号室)
頭金
8万円
月々98,729円
SBtype
2LDK+S+WIC
68.15㎡
![]()
南向き住戸
WIC設置ほか収納充実
全居室5帖以上
2つの居室に引き戸採用
SB TYPE 5,748万円をご購入の場合(520号室)
頭金
8万円
月々117,764円
WF2type
3LDK+MC
70.06㎡
![]()
LDK15帖超
センターオープンサッシ
MC設置ほか収納充実
各居室収納充実
WF2 TYPE 5,248万円をご購入の場合(408号室)
頭金
8万円
月々107,612円
EAtype
3LDK+WIC
74.24㎡
![]()
全居室5帖以上確保
13帖超のゆとりのLD
WIC設置
EA TYPE 5,798万円をご購入の場合(631号室)
頭金
8万円
月々119,033円
家族の暮らしの幅が広がる、
専用テラス付1階プランの
楽しみ方。
「プレディア神戸舞子レジデンス」の1階には、
さまざまなライフスタイルを戸建て感覚で楽しめる
専用テラス付プランをご用意しました。
SFタイプ専用テラス完成予想CG

開放感ある
広い空が気持ちいい

手軽に
おうちキャンプを

ガーデニングや
DIYも気軽に

子どもの
遊びスペースに

下の階も
気にならない
まるで空にあるわが家の庭、
ルーフバルコニー付
4LDKの魅力。
最上階住戸の一部には、住まいと空との一体感を
味わうことができる、ゆとりあるルーフ
バルコニー付4LDKプランをご用意しています。
爽やかな空の下
日光浴やヨガで
健やかに
ガーデニングや
家庭菜園にも
ぴったり
満天の星空を
見あげながら
天体観測
ティータイムや
ブランチを楽しむ
セカンドリビングに


