LIMITED
物件エントリー者様限定サイト
FLOW
お申込みからご入居までの流れ
日程は予定であり、
若干変更となる場合がございます。
予めご了承ください。
-
2026年1〜3月
- マンションギャラリー
ご見学・ご商談 - 住宅ローンご利用の方:
住宅ローン事前審査のお手続き

- マンションギャラリー
-
2026年3月中旬
- 第1期販売登録受付
- 登録申込み
抽選>ご購入住戸の確定
-
- 購入申込手続き
- 不動産重要事項説明
-
- 売買契約の締結
- 手付金のお支払い

-
適時
- 住宅ローン本申込
- 住宅ローンご利用者様

-
- オプションお申込
- 間取プラン、室内カラーの選定オプションのセレクト
※住戸により申込期限が異なります

-
2027年7月下旬
- 入居説明会
- ご入居前の諸お手続き
・管理組合届出関係・登記手続き・火災保険申込など

-
2027年8月上旬
- 融資の契約手続き
- 住宅ローンの金銭消費貸借契約
※金融機関窓口にて

-
2027年9月中旬
- 建物内覧会
- 完成した建物の引渡し前確認
・ご購入住戸の室内確認
・共用部確認・設備取扱い説明

-
2027年10月下旬
- お引渡し会
- 残代金、諸費用等のお支払い住戸キー等の受領
-
- ご入居
- お引越し、住民票異動
※一斉入居につき、引越し日時の調整をさせていただきます。
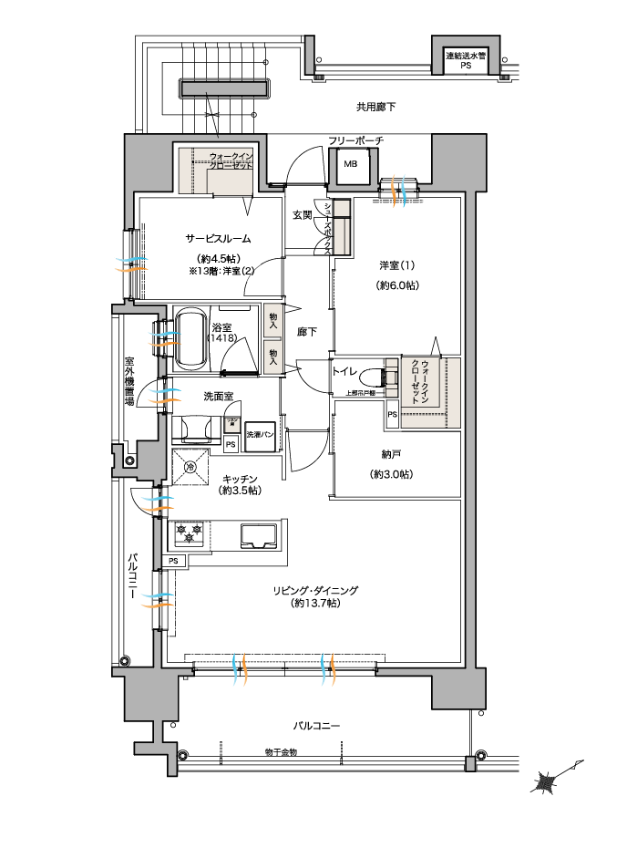
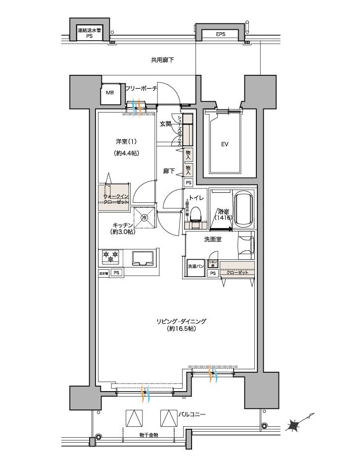
プレディア大芝